公司地址:襄陽市樊城區春園西路賈洼工業園 郵箱:xfycdq@163.com

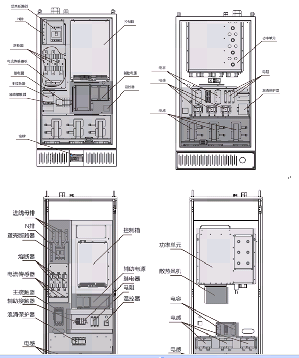
Y-APF內部結構
·關鍵元器件全部采用進口優質品牌,保證質量。如IGBT采用全世界最著名的品牌塞米控的IGBT、進口驅動電路、進口優質風機、進口電容器等。
·控制算法與軟件歷經十余年的積累改進,成熟穩定可靠性高。雙DSP控制系統,采用矢量篩選技術。
·可實時動態濾除2~50次諧波,或者有選擇的濾除電網相線和存在的各次典型特征諧波(可以不受限制的任意選擇需要補償的不同次數諧波),并可以根據需要設定需要濾除的諧波次和設定濾除諧波的目標值。
·三相四線制系列產品零線上的諧波濾波能力是相線濾波能力的三倍。針對照明等單項負載造成零線諧波過載(零線上的三次諧波電流因為相位相同而疊加將會達到相線上的三次諧波電流的三倍)和相不平衡的情況。
·內置諧波補償、無功補償、不平衡補償等多種補償功能,用戶可自行設定選擇補償功能。在濾除諧波的同時,可進行無功補償和消除負載不平衡現象。
·為國內用戶量身定制的中文大屏幕液晶屏,操作簡單方便,可實時顯示數據域曲線,可提供完整的現場信息內置濾波補償、無功補償、不平衡補償等多種補償功能,用戶可自行設定選擇。
·模塊化柜體結構,節奏合理,電纜可從裝置柜體頂部或底部進入,安裝靈活。800mm寬的有源濾波柜相線濾波能力達到300A,零線濾波能力達到600A。
·完整有效的各類保護措施。確保正常工作和一部工況下,都不會對供配電系統級系統內其他設備造成任何影響,包括各類保護功能(過載、過/欠壓、過流)、內置高頻率濾波回路確保Y-APF自身高頻率載波不回饋電網、內置緩啟動控制回路避免啟動瞬間過大突入電流。可根據負載變化,自動合理限制補償電流,裝置永不過流,在濾波的同時,能完全避免過補償。
·Y-APF自身高頻載波不會回饋到電網,對供電系統及形態內其他設備不照成干擾。
·標準通訊接口,滿足供電系統實現電力監控功能的需要。采用通用的modbus遠程通信協議,通信接口為R4S85/232和CAN總線。
·獨立于電網系統阻抗之外,不收電網系統阻抗影響,不發生諧振與諧波電壓放大,安全性好。
·擴展性能好,可多臺Y-APF并聯應用。
Y-APF性能指標
電氣特征 額定電壓(V) AC380±15%, AC69±15%
工作頻率(HZ) 50±0.5
電氣接線 三相三線
最大濾波電流(A) 60 100 200 300 60 100 200
CT要求 需要3個CT,5VA,CT兩側電流為5A
濾波范圍 2-50次諧波(可以選擇性諧波,各次諧波補償可分別設定
濾波程度 選定的每次諧波可進行幅值補償設定
濾波能力 >95%
無功補償 內置諧波補償、無功補償、不平衡補償等多種補償功能用戶可自行設定選擇補償功能
響應時間 1ms
有功功率損耗 <3%額定模塊功率下
過載能力 120%,1分鐘
多臺運行方式 主從控制,并聯運行(單母線不超過20臺)
平均無故障時間 ≥10萬小時
控制特征 開關頻率 平均20khz
控制算法 具有自適應能力的頻域篩選矢量補償算法
諧波控制 采用國際上最先進的閉環控制技術
控制器 數字式雙DSP
通信功能 采用Modbus遠程通訊協議,通信接口RS485/232和CAN總線
控制連接 光纖或電氣連接
結構特征 外形尺寸 2200(高)×800(寬)×600(深)或按客戶要求定制
重量 <500kg
防護等級 1p20或按用戶要求定制
顏色 RAL7035(淺灰色)或按用戶要求定制
冷卻方式 強迫風冷
整體結構 落地式
安裝方式 室內安裝,固定方式可選、電纜進線方式可選
環境條件 環境溫度 -25℃∽+55℃
存儲溫度 -40℃∽65℃
相對濕度 最大95%,無凌霜
海拔高度 安裝海拔小于2000米(其他特殊要求需要定制)
電磁兼容標準及測試 符合GB/T 7251-2005(GB/T7261-2000)包括衰減震蕩波脈沖群干擾、靜電放電干擾、輻射電磁場干擾、快速瞬間變干擾、浪涌(沖擊)干擾度、電壓中斷抗干擾、電磁發射試驗等
Y-APF設備選型與安裝
一、容量計算方法:
A、運行環境確定容量法
根據多年的運行經驗,推導出下列諧波電流計算經驗公式,可滿足工程設計要求,公式為經驗公式,計算過程僅涉及數值計算,不涉及量綱。
Ih=Sl×ah
Ih:諧波電流,單位A
SI: 計算負荷額定容量,單位KVA
Ah:補償系數,通常在0.075~0.3之間,單位/KA
無特殊干擾,如寫字樓、住宅樓等,補償系數選0.075~0.12。
中等干擾,如節能燈、電能、復印機、空調相對集中的辦公樓、燈光照明比較多的體育場和舞臺劇場、通信數據中心、銀行數據中心、電視演播中心、一般工廠燈,補償系數選0.12~0.225。
強干擾的項目,如通訊基站、電弧爐、大型UPS設備、變頻器、接焊機、整流設備等工廠,補償系數選0.225~0.3。
B、諧波負載確定容量法
根據不同類型的非線性負載的各自容量,選擇不同非線性負載的各自補償系數,確定各自所需補償電流的大小,疊加計算得出所需配置的Y-APF的容量。
常見諧波負載的典型諧波含量:
負載類型 典型諧波含量(%) 負載類型 典型諧波含量(%)
變頻器 33~50 客戶電梯 15~30
中頻感應加熱電源 30~35 六脈沖整流器 28~38
LED燈 15~20 十二脈沖整流器 10~12
節能燈 15~30 電焊機 25~58
電子鎮流器 15~18 變頻空調 6~34
開關電源 20~30 UPS 10~25




(不想等待可點擊按鈕通過QQ進行溝通,或直接電聯。)
關閉